Bailli 64
Rénovation d'un immeuble à appartements et d'une maison unifamilliale en interieur d'ïlot / 1.150 m2 / Ixelles / 2025
La rue du Bailli est partagée entre les territoires de la Ville de Bruxelles et d'Ixelles (nos 33 à 97 et 36 à 104).Il s’agit d’une rue commerçante et de passage reliant l'Avenue Louise au parvis de l'église de la Sainte-Trinité, formant ainsi un lien clé entre les quartiers bruxellois du Châtelain et Tenbosch.Elle résulte d'un développement urbain structuré, délimité par l'arrêté royal du 20 février 1864 dans le cadre du plan d'alignement du quartier Tenbosch.Cette évolution a entraîné la démolition partielle de bâtiments antérieurs vers 1900, révélant ainsi la dynamique de transformation de ce secteur au tournant du siècle.
La majorité des immeubles de la rue du bailli ont un gabarit R+2+T avec des façades dont les couleurs sont principalement blanches, grises, rouges et brunes. Les affectations des rez-de-chaussée des immeubles sont principalement commerciales avec, de manière éparse, des établissements Horeca, l’ensemble étant généralement surplombés d’appartements (logements). Le corps principal à rue garantit la vitrine, tandis que le corps secondaire en fond de parcelle et en coeur d’îlot, offre des espaces plus privés ou annexes.La façade du bâtiment à rue, au gabarit R+2+T, illustre le style éclectique propre aux constructions bruxelloises de la fin du XIXᵉ siècle, où l’influence néoclassique s’exprime dans la régularité du tracé et ses proportions soignées. La composition, parfaitement symétrique, s’organise autour de trois niveaux principaux relevés d’un étage mansardé rythmé par des lucarnes discrètes. Les baies des deux étages supérieurs sont encadrées par des linteaux légèrement cintrés, apportant souplesse et élégance à la trame régulière de la façade.La modénature est sobre, ponctuée de moulures et cartouches en stuc sur la partie supérieure, dont l’état témoigne de l’usure du temps mais préserve l’unité architecturale.Les balcons superposés en ferronnerie ouvragée, ornés de motifs géométriques, enrichissent l’ensemble d’une dimension raffinée. Une corniche proéminente vient souligner l’horizontalité et couronner la façade, selon l’esprit néoclassique, tandis que l’étage mansardé complète la silhouette urbaine du bâtiment.Malgré la transformation de la façade du rez-de-chaussée pour des usages commerciaux, la lecture verticale de la façade, sa composition et sa structure initiale, demeurent préservées, assurant à l’immeuble une intégration harmonieuse dans la trame continue de la rue du Bailli, respectant les hauteurs de corniche et les gabarits du quartier.Le second corps de bâtiment situé en coeur d’îlot sur la parcelle se présente comme une petite maison en retrait, typique des constructions d’arrière-cour à Bruxelles.Ce volume, d’apparence très simple et fonctionnelle, contraste avec l’architecture plus élaborée de la façade sur rue.La maison est caractérisée par une toiture inclinée couverte de tuiles, percée par une fenêtre de toit et une finition enduite de la façade, aujourd’hui très altérée.
À l’intérieur, le commerce existant (magasin de vêtements) occupe de façon continue l’ensemble du rez-de-chaussée ainsi que plusieurs niveaux, depuis la façade sur rue jusqu’au fond de parcelle.Avec le temps, des annexes ont été ajoutées entre les bâtiments avant et arrière, effaçant la distinction originelle entre les deux corps de bâti.Aujourd’hui, cette séparation est quasiment imperceptible de l’intérieur. Le commerce se déploie ainsi sur plusieurs étages de l’ensemble, tandis que les niveaux supérieurs de chaque bâtiment accueillent encore quelques unités de logement.Cependant, ces logements ne répondent pas aux normes réglementaires attendues : ils sont accessibles uniquement en traversant les espaces commerciaux, et présentent des surfaces et des apports de lumière naturelle insuffisants pour garantir des conditions d’habitation conformes et souhaités par les exigences actuelles.
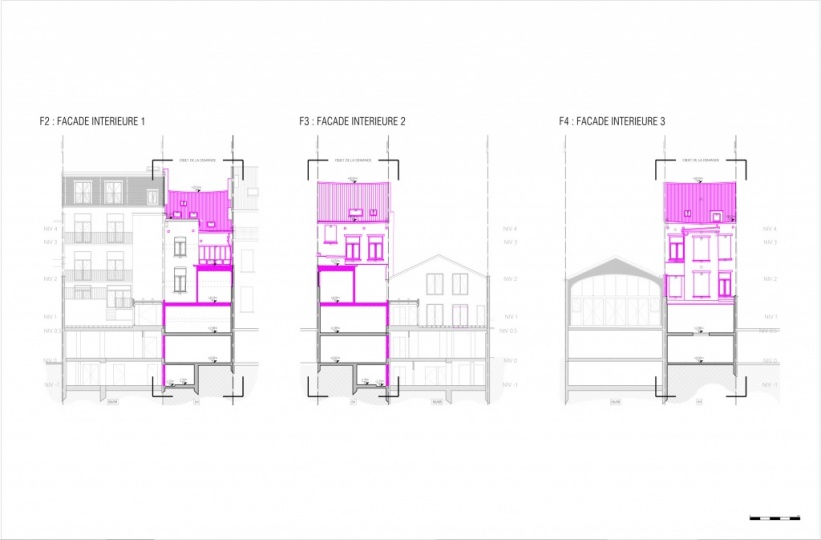
Comme déjà exposé, le projet porte sur la revalorisation complète de l’immeuble n° 64 de la rue du Bailli à travers une restructuration qui met en particulier l’accent sur la qualité de l’habitat et la cohérence urbaine.Il consiste en une rénovation lourde des deux corps de bâti existant pour accueillir un commerce au rez-de-chaussée et 5 logements, soit une augmentation d’un seul logement par rapport à la situation de droit.Le nouveau programme permet de distribuer l’avant et l’arrière du bâti en unités d’habitation se déclinant comme suit :-Au niveau du bâtiment existant avant, il est prévu d’aménager 4 unités de logements (3 logements 2 chambres et 1 logement 1 chambre)Les 4 appartements du bâtiment sur rue sont traversants et proposent des surfaces confortables.Leur conception privilégie la lumière et la qualité de l’espace – chaque espace de vie principal (comprenant séjour/cuisine/salle à manger) s’ouvre sur une terrasse aménagée, toutes orientées plein sud, garantissant un apport solaire maximal et un espace extérieur privatif valorisant.Les logements disposent d’une véritable entrée avec rangements/vestiaires intégrés, de deux chambres (une pour l’unité du dernier niveau) et d’une salle de douche par chambre.
Le bâtiment arrière est quant à lui réaménagé en un logement unifamilial composé de 5 chambres sur 4 niveaux.La maison individuelle en coeur d’îlot s’élève sur quatre niveaux, accueille cinq chambres – chacune dotée d’une salle de douche – et se distingue par quatre grandes terrasses, deux adjacentes à l’espace de vie principal du niveau bas et une tropézienne créée sur le toit grâce à une toiture entièrement refaite et isolée par l’extérieur.Le rez-de-chaussée dans son ensemble reste affecté en commerce avec une surface totale de 276 m2 et partage les accès de service et évacuation de secours.Enfin, le sous-sol est redistribué en surface de stockage pour le commerce, de caves privatives pour les 5 logements et de deux locaux vélos permettant de garer 12 vélos (5 + 7) soit 1 vélo par chambre, conformément au RRU.Il n’est pas prévu d’aménager des emplacements de parkings pour véhicules qui seraient réservés aux futurs occupants des logements de l’immeuble et/ou pour le commerce.
Le projet engage une démarche de dédensification et de valorisation paysagère du coeur d’îlot, notamment par la démolition des annexes non conformes situées en milieu et en fond de parcelle.Afin d’améliorer la qualité de l’intérieur d’îlot par rapport à la situation actuelle, il est prévu d’aménager les espaces verdurisés suivants :-une surface en pleine terre de 38m2 au-dessus de la dalle couvrante du RDC, entre les deux corps de bâti, pour donner une respiration verte en coeur de parcelle. Dans l’usage, il s’agit d’un jardin d’agrément conçu pour le plaisir des yeux, reposant sur une composition végétale.-une surface en pleine terre de 6m2 sur la terrasse sud de la maison unifamiliale, à usage privé-une toiture extensive de 17m² au-dessus de la dalle couvrant l’entrée à la maison unifamiliale
Cette intervention permet en outre de dégager de l’espace, d’améliorer l’ensoleillement pour les logements, et de créer des jardins et terrasses de qualité, contribuant à la biodiversité et à la qualité de vie au sein de l’îlot.Les nouveaux espaces extérieurs seront ainsi pensés afin d’offrir des usages variés (privatifs, paysagers), un cadre végétal et des ambiances lumineuses en coeur d’îlot.
En l’état actuel des choses, la façade avant du bâtiment donnant sur la rue du Bailli a besoin d’une remise en état. L’intervention projetée à rue consiste, d’une part, en la rénovation de la façade afin de retrouver ses éléments constitutifs tels que balustrades en fer forgé, enduits, modénatures et châssis en bois et, d’autre part, en la rehausse de toiture.Le choix se porte sur le maintien de la hauteur de corniche qui correspond à la hauteur moyenne de la rue. Le nouveau volume s’inscrit scrupuleusement dans le profil du 66/68 (voisin le plus haut), sans dépasser de plus de trois mètres le niveau du voisin le plus bas (62).La rehausse sera traitée en zinc à joint debout ton gris.









