BAILLI 66/68
Reconversion d'un ancien cinéma / 1200 m2
Crédit photo : Lode Saidan
La parcelle sis rue du Bailli à Ixelles est composé d’un bâtiment de logement à rue et d’un bâtiment en intérieur d’ilot qui abritait en son temps le cinéma Mogador.
Le projet de reconversion a été pensé dans le souci de préserver ce patrimoine si particulier, témoin d’une histoire et d’une époque, et d’en tirer parti, tout en concédant les adaptations nécessaires aux besoins d’un programme de logement.
Un cinéma est conçu pour accueillir un public venu assister à une projection dans des conditions maîtrisées. La qualité de l’expérience repose notamment sur une immersion visuelle maximale, rendue possible par l’obscurité quasi totale de la salle.
Dès lors, la reconversion d’un cinéma en programme de logement soulève immédiatement la question de l’apport de lumière naturelle, en tension avec cette configuration initialement pensée pour l’absence de lumière.
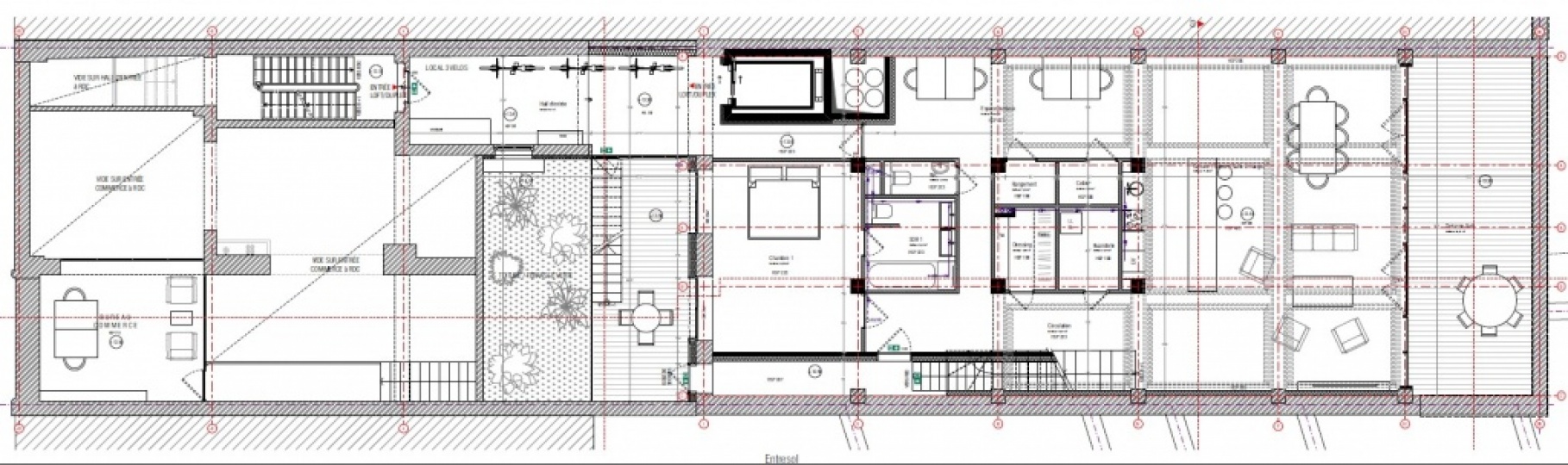
Pour créer des apports de lumière naturelle, la dernière travée au sud-est du bâtiment est sacrifiée et transformée en terrasse. La travée centrale est « creusée » pour créer un patio central au niveau haut (mezzanine).
La pièce de vie principale se déploie dans un volume d’exception en double hauteur. Elle conserve le faux plafond en anse de panier ainsi que l’ensemble des décors d’origine du cinéma (moulures, pilastres, frise fleurie). L’espace bénéficie d’un apport généreux de lumière naturelle grâce au patio central et à une large baie vitrée cintrée, épousant la forme du plafond, ouverte sur la terrasse orientée sud-est.
Cette baie vitrée prend place là où se trouvait autrefois l’écran de projection, aujourd’hui comme dissous dans la transparence. Le projecteur a laissé place à la lumière du jour, et ce sont désormais les arbres du cœur d’îlot qui se projettent à l’intérieur, leurs silhouettes mouvantes venant s’imprimer sur le regard à travers le vitrage.
Le gabarit présente un plan rectangulaire d’une profondeur de 23 mètres sur une largeur de 10 mètres. Le bâtiment est organisé en 6 travées rythmées par des pilastres et des moulures aux murs et au plafond. S’agissant d’un bien d’exception, le plan a été conçu en s’appuyant sur cette trame existante :
- La moitié du bâtiment côté sud-est (correspondant à trois travées) conserve la double hauteur et est dévolu aux espaces principaux de vie commune, tandis que l’autre moitié du bâtiment (côté nord-ouest) se développe sur deux niveaux et abrite les chambres, les salles d’eau et salles de bain, et les différents espaces techniques et de service ;
- Des baies sont créées dans la façade nord-ouest pour les chambres, et l’ancien accès au niveau mezzanine du cinéma est démoli au profit d’une seconde terrasse plus intime.
- Pour créer ces nouveaux espaces, un structure primaire indépendante en bois lamellé collé est mise en œuvre, sur l'axe central, du sous-sol au haut du duplex. Les planchers secondaires en bois seront de type léger et "à assemblage » également. Ce choix s'explique, entre autres, par la contrainte du site mais également pour répondre à un critère de circularité.
- Le rez-de-chaussée commercial est entièrement ouvert et rénové pour accueillir de nouveaux types de commerce.
- Le sous-sol st dédié aux communs et au stock, une rampe accédant directement de la rue facilite l'accès de service mais également l'accès vélo pour les occupants




























